a design blog featuring Southern Maine Community College class assignments and design projects.
4/22/13
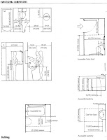
Human Dimensions
The following images are from Francis Ching's Book - Interior Design Illustrated I highly recommend purchasing this book for any one in the design profession. select on image to enlarge.
No comments:
Post a Comment